Trilocale in vendita

Ovindoli, Via del Ceraso
€ 98.000
3 locali 3 locali
65 Mq 65 Mq
1 bagno 1 bagno

Trilocale in vendita

Ovindoli, Via del Ceraso

Descrizione annuncio

Ovindoli - a pochi passi dalle piste da sci di Monte Magnola e ai principali servizi del paese proponiamo un appartamento al secondo piano di una palazzina riqualificata al bonus 110%.

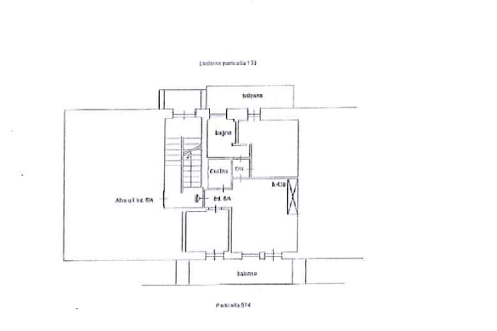
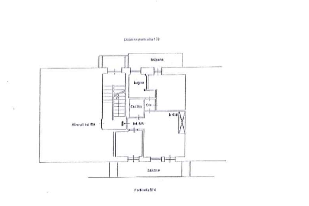
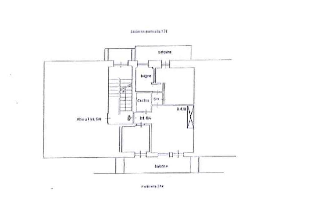
L'appartamento è così disposto: entrando troviamo una zona giorno con divano letto, camino e balcone esposto completamente a sud. Proseguendo troviamo una cucina, camera da letto matrimoniale con balcone, camera singola e un bagno con doccia.

A COMPLETARE UN POSTO AUTO ASSEGNATO NEL GARAGE CONDOMINIALE.

IL RESIDENCE GODE DEL SERVIZIO PORTINERIA E AREE COMUNI DI VARIO TIPO.

Per maggiori infromazioni e per visionare l'immobile non esitare a contattarci allo 0862-1911911 o recarvi presso la nostra agenzia in Rocca Di Mezzo, Via XXIV Maggio, Galleria Borgo del Sole.

Seguiteci anche su Facebook Agenzia Tecnorete Rocca Di Mezzo e su Instagram Tecnorete_roccadimezzo.

Mostra tutto

Nelle vicinanze

Trasporto pubblico Trasporto pubblico
Piazza San Rocco
Piazza San Rocco
230 m
Ricariche auto elettriche Ricariche auto elettriche
Ovindoli Campi Sportivi | Becharge
490 m
Monte Magnola Impianti s.r.l | BeCharge
1,7 Km
Scuole Scuole
Scuola elementare
470 m
Scuola Elementare "Luigi Dard"
620 m
Supermercati Supermercati
Market la Pineta
500 m
Negozi Negozi
Supermarket
220 m
Ristoranti Ristoranti
La Stozza
190 m
Il Pago
240 m
La Fonte
510 m
La Pinetina
690 m
La Baracca
1,9 Km
Mostra tutto

Caratteristiche

Rif.:
61155150
Piano:
2 di 2 con ascensore (Piano alto)
Posti auto:
1
Balconi:
1
Camere da letto:
2
Arredamento:
Completo
Mostra tutto
Prezzo Prezzo
€ 98.000
Rata mutuo Rata mutuo
€ 463 / mese
Spese annue Spese annue
€ 800
Proponi il tuo prezzoProponi il tuo prezzo

Classe Energetica

D
D
D
D
D
D
D
D
D
EP globale non rinnovabile:
88.00 kW h/m² anno
EP globale rinnovabile:
88.00 kW h/m² anno
EP invernale del fabbricato:
EP estiva del fabbricato:
Anno di costruzione:
1970
Riscaldamento:
Autonomo
Tipo impianto:
A radiatori
Tipo alimentazione:
Metano

Ti interessa visionare l'immobile?

Fissa un appuntamento  Fissa un appuntamento

Richiedi informazioni

Clicca su Leggi per aprire l'informativa
* Questi campi sono obbligatori

Calcola il tuo mutuo

Semplice e senza impegno
Anticipo

( % )
Mutuo

( % )

pochi semplici passi

inserisci i tuoi dati
Questionario completato
Grazie per aver richiesto un appuntamento senza impegno con un nostro Consulente del Credito e Assicurativo.

Hai inserito correttamente tutti i dati necessari e a breve riceverai una e-mail con un link da convalidare per inviare i tuoi dati.
Affiliato
Immobiliare Le Rocche Srl
Via XXIV Maggio, snc 67048 Rocca Di Mezzo (AQ)

Il nostro staff


  • Marco Ianni
    Affiliato

  • Riccardo Di Sabantonio
    Collaboratore

  • Marika Miconi
    Coordinatrice

  • Federico Vespa
    Collaboratore
Via XXIV Maggio, snc 67048 Rocca Di Mezzo (AQ)
Zona: Rocca di Mezzo-Ovindoli-Rocca di Cambio
Mostra su mappa
Affiliato
Immobiliare Le Rocche Srl
Via XXIV Maggio, snc 67048 Rocca Di Mezzo (AQ)

2025 Tecnocasa Franchising S.p.A. - P. IVA 08365160152 - Via Monte Bianco 60/A 20089 Rozzano (MI). Ogni agenzia ha un proprio titolare ed è autonoma. Privacy policy | Policy utilizzo | Cookie policy